C-15 and C-16 Industrial Engines – Rear Power Take-Off (RPTO)



Illustration 1 g00766684

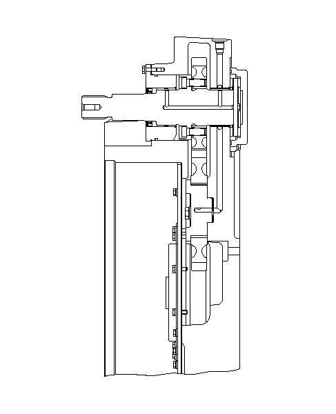
Rear Power Take-off (Typical example)

The Rear Power Take-Off (RPTO) is an integral part of the flywheel housing, if equipped. The Rear Power Take-Off provides continuous live power through the following direct drive gears:

  • rear crankshaft gear

  • idler gear

  • output shaft

These gears are driven off the rear of the crankshaft. A 1.3:1 RPTO is available and a 1.15:1 RPTO is available. The length of the engine is increased about 89 mm (3.5 inch). Approximately 73 kg (161 lb) is added to the engine weight.

The gear train and the design of the spline is capable of handling up to 1108 N·m (817 lb ft) of torque throughout the full engine speed range. The 1.3:1 RPTO output shaft will rotate 1.3 times for each revolution of the engine. The 1.15:1 RPTO output shaft will rotate 1.15 times for each engine revolution. The output shaft end play is controlled with a rotating thrust plate and two stationary hydrodynamic thrust washers.

Oil is supplied through drilled passages in the flywheel housing and in the shafts in order to lubricate all bearings and all thrust surfaces. The gear surfaces of the RPTO are lubricated by oil that is splashed up. No additional preventive maintenance or adjustment is necessary with the RPTO.