1P87 Adjusting Wrench.
Whenever the governor is disassembled the pilot valve plunger central position adjustment should be checked and adjusted if necessary.

PILOT VALVE PLUNGER CENTRAL ADJUSTMENT
1. Pipe plug opening. 2. Pilot valve control land. 3. Pilot valve bushing. A. Port opening above land. B. Port opening below land.
1. Using a small flashlight, observe the position of the pilot valve control land (2) with respect to the port in the pilot valve bushing (3), through the 1/16 in. pipe plug hole (1) in the straight side of the base.
2. Push pilot valve toward drive end as far as possible, this will move the flyweights (5) to inner position. Through the pipe plug hole, check the amount of port opening (A) above the edge of the pilot valve control land.
3. Holding the pilot valve against the flyweight toes, move the flyweights outward as far as they will go, and check the amount of port opening (B) now appearing below the edge of the pilot valve control land.
4. The amount of port opening with the flyweights at extreme inner and outer positions-should be equal within .010 in. (0,25 mm).

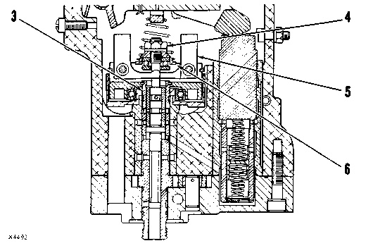
GOVERNOR CROSS SECTION
3. Pilot valve bushing. 4. Locknut. 5. Flyweight. 6. Spring seat.

HOLDING SPRING SEAT WITH 1P87 ADJUSTING WRENCH TO MAKE ADJUSTMENT
5. If the pilot valve plunger is too low, hold the spring seat (6) with 1P87 Adjusting Wrench and turn the pilot valve counterclockwise to raise it. If the pilot valve plunger is too high, hold the spring seat and turn the pilot valve clockwise to lower it.
6. When the pilot valve appears to be centered, tighten the locknut (4) on the spring seat, recheck the valve setting.
7. The 1/16 in. pipe plug can now be installed, using a 8H5137 Sealing Compound to prevent leakage of oil.